Flex 60LC
From $6,995.00
Designed for single room installation, the Left Corner Fireplace Insert features two open sides. The transparent glass on the left corner enables the flame to be viewed from the front and the left corner, providing interior designers, homeowners, architects and builders with the freedom to customise their fire solution to suit a floor plan. The clean lines and 'all flame' configuration of the Flex 60LC means the entire viewing area is dedicated to the eye-catching flame, creating a harmonious blend of traditional style and contemporary design.
Accessories
Included
XL Baffles
Fire Lighter
Lighting Rod
Specifications
Awards
2020 BIMsmith Best Award (USA) and 2018 Attendees Choice Award (USA)
Application
Indoor or Outdoor
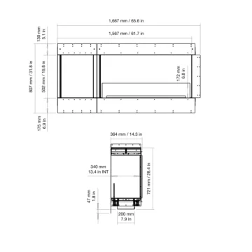
Dimensions
Model
- W 1,667 mm [65.6 in]
- H 807 mm [31.8 in]
- D 365 mm [14.4 in]
Viewing Area
- W 1,567 mm [61.7 in]
- H 502 mm [19.8 in]
- D 340 mm [13.4 in]
Weight
- 87.1 kg [192 lb]
Materials
Colour
Model
Burner
Physical model dimensions should be verified against cut out dimensions BEFORE installation begins to confirm tolerances align.

Efficiency
Loading image...


True zero clearance
Self-contained, zero clearance construction provides unlimited installation freedom and flexibility for builders, architects, interior designers, landscapers and homeowners.
Indoor or outdoor application
Powered by clean-burning e-NRG ethanol fuel, Flex 60LC is suitable for indoor or outdoor installation. Ethanol is a sustainable fuel choice made by fermenting plants like sugarcane or corn.
Unmatched heat efficiency
Unlike gas fireplaces that lose 30% of heat through vents, Flex’s closed combustion system keeps every BTU in your room. Warmth stays where it belongs—no energy wasted, no chimneys needed.
Loading image...


Industry exclusive decorative box
Optional or included box configurations for select firebox lengths. Fill with any non-combustible accessory or choose our optional eye-catching log set available in copper finish.
Loading image...
Quick and easy installation
With no need for ventilation or utility connections, integrating a fire feature has never been simpler. Flex installs fast and is ready for the finishing touches in less than an hour.
Loading image...


Included accessories
Each Flex comes with decorative Black Glass Charcoal and integrated fire screen which sits flush behind the frame.
Loading image...
Available in 12
Opening Sizes
Flex fireplaces transform any room with a range of sizes to choose from. Elevate your space with the perfect ambiance no matter how big or small.






















